既存の家具や建具を活かし、新旧融合の上質空間へ。自然採光と照明の演出効果でわが家がドラマチックに生まれ変わる

25-09-2509
リフォーム・リノベーション概要
リフォーム・リノベーション概要

ご自宅で過ごす時間が増えた事にともない、愛用の家具や、住まいの魅力を引き出す空間で暮らしたいと考えるようになったTさまご夫妻。 照明計画やウインドウトリートメントは新しくする一方で歳月を経て味わいの増した木製建具や扉をリペアしながら使うなど、新旧融合でブラッシュアップするリノベーションを行いました。

続きを読む
居間・食堂
居間・食堂

折り上げ天井にコーブ照明とダウンライト、間口いっぱいに広がる開口部には調光カーテン照明を採用し、表情豊かな空間となりました。「季節や時間に応じて、さまざまな光の演出が楽しめて気にっています」とTさま

続きを読む
居間・食堂
居間・食堂

やわらかな印象を与える上質なカーペット、アクセントウォール、ブルーグレーの木製建具の組み合わせが洗練された北欧スタイルの空間を演出。フロートタイプのテレビボード背面の間接照明が、大判のスレート調エコカラットを美しく照らします。

続きを読む
居間・食堂
居間・食堂

出入り口の左脇には、壁を挟んだ反対側にある玄関収納の奥行きを活用したウォルナット柄の背面収納を造作。コーナー部分は木目の美しい化粧板を採用しています。「規約でフローリングが使えないマンションのため、住まいのどこかに木を感じるコーナーがほしかったので、気に入っています。奥行が深すぎた玄関収納もリビング側から活用できてTGRVの担当者の発想に感心しています」とTさま

続きを読む
主寝室
主寝室

ベージュとブルーグレーでコーディネートした、シックな主寝室。ヘッドボード上部に読書灯としても使えるブラケットを設置。ベッドの奥のドアは隣接するクローゼット(洋室2)につながっています。

続きを読む
主寝室
主寝室

以前は全面収納スペースだったベッドエンドに、オーダーメイドの引き出し式収納家具を新たに設置。これまではベッドと家具の間に十分なスペースが確保できず歩きにくかったため、収納家具は以前より約10cm奥行を小さくしています。

続きを読む
主寝室
主寝室

主寝室と洋室2の間にドアを新設して、廊下→主寝室→洋室2→洋室1→廊下を回遊できるように。「主寝室から子供たち家族が泊まる洋室1につながる動線ができ、広がりが生まれ、孫たちも大喜びです」とTさま

続きを読む
洋室2
洋室2

以前子供部屋だった洋室2は、寝具類やトランク・衣類・書籍などの収納スペースに。向かって左側の間仕切り壁を移動して、ゲストルームとして使う洋室1の床面積を広げました。「通路の両側に収納できるのでとても便利。洋室1からも主寝室からも出入りできる点が使いやすく気に入っています」とTさま

続きを読む
玄関ホール
玄関ホール

ブルーグレーのドアと淡いグレーのカーペット・トラバーチン調のエコカラットというニュアンスカラーの組み合わせでまとめた清涼感のある玄関ホール。玄関収納上部は、Tさまご夫妻がコレクションされてきたアート作品のギャラリーに。

続きを読む
玄関ホール
玄関ホール

奥行きが90㎝以上あり使いにくかった玄関収納は、奥行き45㎝の造作家具をいれて使い勝手が格段に良くなりました。玄関ホール入って左手の居間食堂への出入り口のドアは採光部の大きいタイプに交換。玄関ドアは新しく取り付けた木製建具の色調に合わせて再塗装したもの。

続きを読む
廊下
廊下

廊下のつきあたりにある洋室2のドアも採光部の大きなデザインに交換。さらに壁際にコーニス照明をつけて、陰影が美しい廊下に。

続きを読む
建物
マンション
築年数
34年
費用
1700万円台(税込)
面積
83.63㎡
構造
RC造
リフォーム内容

部分リフォーム(水廻り部分は既存)

※工事費用、それに伴う消費税額はお引き渡し当時のものです。

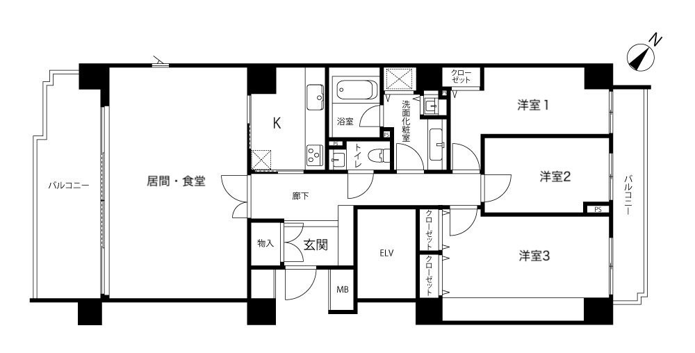
間取り

ビフォー・アフター

居間・食堂

愛用のカウチソファやダイニングセットにマッチする照明器具・ウィンドウトリートメントをコーディネートして、北欧テイストのインテリアに。

お客さまのご要望

  • 現在使っているダイニングセットやカウチソファに、しっくり馴染むインテリアを提案して欲しい

  • マンションの規約で、床材はカーペット仕上げと決まっているため、床以外の部分にウォルナット色の木を使ったインテリアを楽しみたい

  • 家族が泊まれるゲストルームを確保したい

東京ガスリノベーション
からのご提案

  • 洋室2を主寝室・洋室・廊下の三方向から利用できる収納スペースとしてご提案

  • 洋室1は家族が遊びに来た時のゲストルームとして使えるよう間仕切り壁を移動し、4名が寝れるスペースを確保するプランをご提案

  • 建具、内装、壁付け収納、照明計画、カーテン含めて、既存の家具にマッチするインテリアをご提案

  • 既存の木製建具は色もデザインも美しく、Tさまも愛着があったため、再利用できる建具は新しい建具と色調を揃えて再塗装を行うことをご提案

お客さまからのご感想

  • TGRVの担当者は、奥行きが深くて使いにくかった玄関収納に仕切りを設けて、玄関・居間の両面から使えるようにするなど、困っていることについて相談すると、こんなことができるんだ!というプロならではの提案をしてくれました。

  • 何もかも新しくするのではなく、気に入っていたブルーグレーの木製建具や建具枠は再塗装して使うことができました。リビングや洋室(2)の建具は既存建具と色調を揃えたタイプを選んでもらい、新旧の建具が違和感なく共存できています。

  • 愛着のあるソファやダイニングセットに合う、ウィンドウトリートメント、照明を吟味して選んでくれました。リビングからはウオーターフロントが望めるのですが、担当者の方がセレクトしてくれたカーテンが動きによって水面のようにキラキラと動くのが気に入っています。時間をかけて選んでくれたのだなと思い、感謝しています。

  • 主寝室や洋室から直接入れる収納スペースは衣類・寝具・トランクなどの収納に重宝しています。これまで収納というのは行き止まりというイメージでしたが、今回の寝室まわりの回遊できる収納をみていると、歩き回りながら取り出せる回遊性のある収納は便利だと実感しています。

  • 同じ住まいなのに、照明による演出によってこんなに印象が変わるのだなぁと実感しています。 私たちの希望や気持ちを大切にして「欲しかったのはこんな住まい」を実現していただきました。

ポイントリフォーム最新リフォーム・
リノベーション事例