リビングのセンターに「学びの場」がある子育て世代の住まい

25-12-2507
リフォーム・リノベーション概要
リフォーム・リノベーション概要

築24年の戸建て住宅を購入した子育て世代のKさまご夫妻。リノベーションによって、思い描いたCool&Modernな新居を実現しました。

続きを読む
リビング・ダイニング
リビング・ダイニング

3方向に窓のある、明るく風通しの良いリビングダイニング。床暖房を交換してフローリングは滑りにくい愛犬仕様に。「キッチンとの間にあった間仕切り壁を撤去して、リビング→キッチン→パントリー→階段ホールがぐるぐる回れるLDKになり、子供たちと愛犬が走り回っています」とKさま

続きを読む
リビング・ダイニング
リビング・ダイニング

リビング中央部にあったガラス製のショーケースを撤去して設けたお子さまたちの「学びの場」。「宿題をしたり、折り紙や工作をしたり‥2人いっしょに作業できるサイズで、今は子ども部屋よりもこちらのコーナーを使う機会が多いです」とKさま

続きを読む
リビング・ダイニング
リビング・ダイニング

リビングダイニングへの扉は開き戸から引き戸に。「季節によってはオープンにして使うこともできるので便利です。木製建具、オーダーしたテレビボード類は黒を基調にして、インダストリアルテイストのインテリアでまとめました」とKさま

続きを読む
リビング・ダイニング
リビング・ダイニング

すっきりとしたブラックの造作カウンター。食器類の収納だけでなく、左側のマグネットウォールにお子さまたちの作品を飾って楽しんでいます。

続きを読む
キッチン
キッチン

「キッチンカウンターは立ち上がりのあるタイプを選びました。シンクまわりがオープンになるタイプよりも、収納力のあるカウンタータイプで生活感を感じないほうが好きなので」とKさま。カウンタートップはレザーのような質感が美しいセラミックをセレクト。

続きを読む
キッチン
キッチン

キッチンからパントリーを通って、階段ホールへ。光を通す型板ガラスの木製ドアと、ブルーグレーの壁クロスでインダストリアルテイストに。キッチンの背面収納のカウンター下にはゴミ箱スペースを設置してすっきりと。

続きを読む
パントリー
パントリー

奥さまのご希望で旧洗濯機置き場を収納力抜群のパントリーに変更。コの字型のウォークインパントリーは、取り出しやすくしまいやすため、Kさまご夫妻のおすすめスペースに。

続きを読む
トイレ
トイレ

パントリーのスペースを広く確保するために、便器の設置位置を90度回転して、コンパクトにまとめたトイレ。アクセントクロスも空間のポイントとなっています。

続きを読む
玄関ホール
玄関ホール

ブラックウォルナット色でまとめた洗練された印象の玄関ホール。玄関収納には便利なマグネットボードを設置。

続きを読む
玄関ホール
玄関ホール

玄関ホールのフォーカルポイントになるニッチ。お雛様や5月のお節句の鎧兜を飾れるように、幅・奥行きを以前よりも広げました。背面はエコカラットで仕上げて格調高い床の間のようなスペースに。

続きを読む
2階階段ホール
2階階段ホール

「帰宅するとまずは階段ホールにある手洗いスペースで手を洗えるように、オープンスペースに洗面化粧台を設置してもらいました。左側がリビングへのドア、右側がキッチンへのドアとなっており、オープンにするとくるくると回遊できて、子どもたちが走り回っています」と笑顔のKさま

続きを読む
建物
戸建て
築年数
24年
費用
2000万円台(税込)
構造
鉄骨造
リフォーム内容

全面リフォーム

※工事費用、それに伴う消費税額はお引き渡し当時のものです。

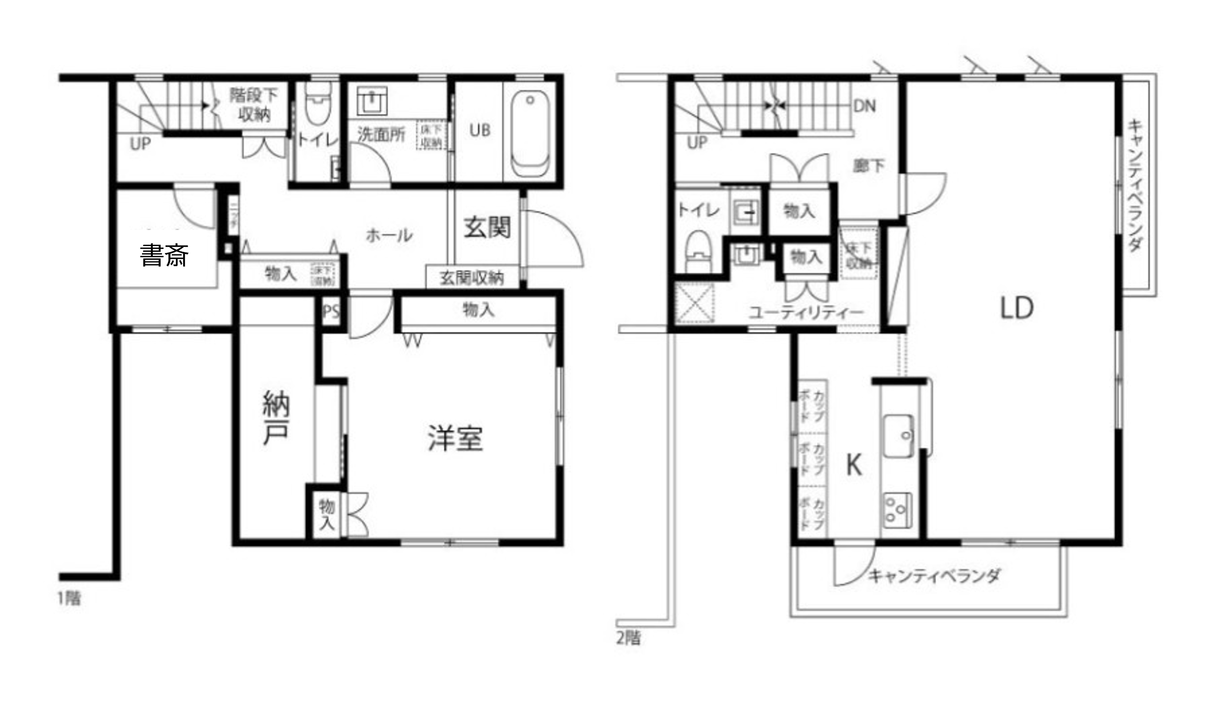
間取り

ビフォー・アフター

リビング・ダイニング

リビング右手中央部にあったショーケースを撤去、お子さまの学習スペースとパントリーを新たに設けて、2階全体をぐるぐると回遊できるようになりました。

お客さまのご要望

  • 玄関ホールのニッチを、お雛様や端午の節句の鎧兜を飾れるサイズに作り変えたい

  • 収納スペースを充実させたい

  • キッチンの近くにパントリーが欲しい

  • リビングにあるガラス製のショーケースを撤去したい

東京ガスリノベーション
からのご提案

  • ガラス製のショーケースを撤去して、お子さまのスタディコーナーの設置をご提案

  • 2階LDK・パントリーへの扉は、室内に光を取り入れる型板ガラスの建具を採用。季節によってはドアをオープンにして回遊できるプランをご提案

  • 洗濯機置き場を1階に移動、キッチンに繋がる収納力抜群のウォークインパントリーをご提案

お客さまからのご感想

お客さまからのご感想
  • 住宅を購入し私たち家族の新居としてリノベーションするにあたり、①設備はすべて一新 ②収納力を上げたい ③ドアを開けると想定外の世界が広がるようなCool&Modernな空間にしたいと考えていました。

  • TGRV社の担当者はとても話しやすく、親身になって相談にのってくださり、さまざまな提案をしてくれました。リビングの中心に子供たちのスペースを提案してくれたり、妻が希望していたキッチンにつながる収納力たっぷりのウォークインタイプのパントリーなど、子育て世代にとって必要なスペースを上手く組み込んだプランに満足しています。

全面リフォーム最新リフォーム・
リノベーション事例