愛着のある我が家を、今の暮らしに最適化。既存を活かした「ちょうどよい」理想の住まい

25-17-2518
リフォーム・リノベーション概要
リフォーム・リノベーション概要

キッチンの水漏れを機に始まった床の張り替え計画は、お子様の独立という転機も重なり、住まい全体を見直すリフォームへと発展しました。これまでの家族の形から、今の「ご夫婦の暮らし」を最優先にした住環境へ。ライフステージの変化に合わせ、お二人がこの先も快適に、自分達らしく時を刻める理想の住まいが実現しました。

続きを読む
LDK
LDK

Yさまとの打合せを通して、既存の良さを活かしつつ設備更新と収納力向上を図る「最適解」を導き出しました。間取りを大きく変えずとも、収納計画や内装の一新により、住み慣れた我が家はより美しく、使いやすく生まれ変わります。

続きを読む
LDK
LDK

お手持ちの家具やカーテン、照明器具をそのまま活かしつつ、床材には深みと落ち着きのあるエイジドチェスナット柄の上貼りフローリングを採用しました。

続きを読む
リビング
リビング

床の色調を一新したことで、愛用されてきた調度品との調和が一層深まり、空間全体の統一感が格段にアップしました。住み慣れた気配を残しながら、シックで洗練された装いへと生まれ変わりました。

続きを読む
リビング
リビング

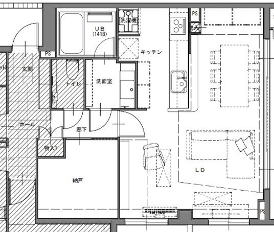
かつて書斎コーナーだったスペースは、壁を造作することで独立した個室へと生まれ変わりました。この新設した壁のリビング側には、ご主人の愛読書を美しく収めるシステム壁面収納を設置。お気に入りの本を手に取り、日常の中でゆったりと読書に没頭できる、贅沢なライブラリースペースを実現しています。

続きを読む
ダイニング
ダイニング

流行を追うことよりも「自分たちの使い勝手」を最優先し、あえてオープンキッチンにはせず、既存の腰壁や垂れ壁を活かす選択をしました。キッチンカウンター右奥の物入は、扉のみ外してオープンに。空間を無駄なく活用しています。

続きを読む
キッチン
キッチン

キッチン廻りはこれまでと同等の収納スペースを確保。隠したいものはしっかりと隠せる実用性を備えつつ、お二人の暮らしのスタイルに最適化した、機能美の光るキッチン空間を叶えています。

続きを読む
キッチン
キッチン

キッチンは引き出し式収納を採用したことで、収納力が格段にアップしました。ワークトップが常にすっきり片付くようになり、お料理も心ゆくまで楽しめるように。さらに、調理スペースとシンクの位置を細かく調整したことで、より快適な使い心地を実現しています。

続きを読む
キッチン
キッチン

洗濯機スペースは、あえて扉を撤去しロールスクリーンを採用しました。日常的にスムーズにアクセスでき、キッチンでの作業と並行して効率よく家事をこなせます。一方で、来客時にはさっと下ろすだけで生活感を隠せる、非常に実用的な設えとなりました。

続きを読む
キッチン
キッチン

実用性と美しさを兼ね備えた、人造大理石カウンターのキッチン。清潔感あふれるホワイトの天板と、扉や既存家具のダークな色調が描くコントラストが、空間の気品をいっそう際立たせています。

続きを読む
洗面室
洗面室

かつてのお悩みだった「汚れ」や「収納の使いづらさ」を、「ざっくりと仕舞える」機能的な引き出し計画によって解決しました。細かく分類しすぎず、出し入れのしやすさを優先した大容量の収納が、毎日の家事を軽やかにし、暮らしにゆとりをもたらします。

続きを読む
洗面室
洗面室

洗面台の背面には、既製品の薄型収納を新たに設置。扉のカラーをホワイトで統一することで、圧迫感を抑え空間に溶け込ませました。また、洗面台の背面の鏡は既存を活かし、空間に広がりと奥行きを演出。こうした「既存の活用」と「細やかな工夫」の積み重ねが、機能的で美しいサニタリースペースを実現しています。

続きを読む
浴室
浴室

最新式のユニットバスへと一新したことで、日々のお手入れが格段にスムーズになりました。清掃性の向上により、家事の負担が軽減されただけでなく、バスタイムそのものが一日の疲れを癒やす「心待ちにする時間」へと生まれ変わりました。

続きを読む
建物
マンション
築年数
24年
費用
900万円台(税込)
面積
47.85㎡
構造
RC造
リフォーム内容

部分リフォーム

※工事費用、それに伴う消費税額はお引き渡し当時のものです。

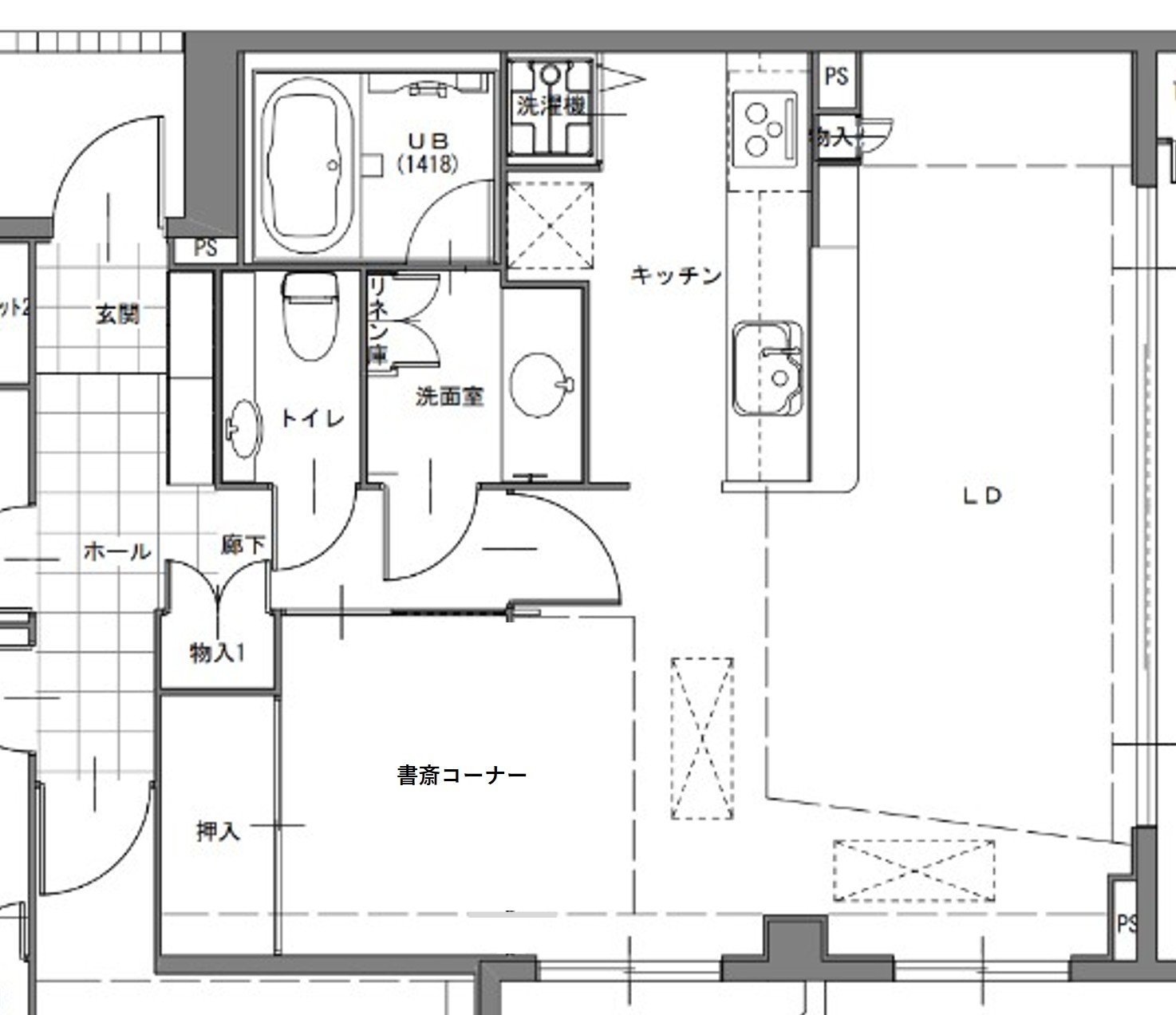
間取り

お客さまのご要望

  • キッチンの水漏れをきっかけに、水廻りを最新設備へ一新したい

  • 蔵書を収める専用スペースを確保したい

  • 住まい全体の収納力を向上したい

  • コンセントを増やして、スマホ充電や家電配置をストレスなく行える住まいにしたい

東京ガスリノベーション
からのご提案

  • 使える部分は大切に活かし、コストと更新箇所のバランスを考慮しながらご提案

  • 機能性・清掃性の高い最新設備をご提案

  • 日々の家事効率を底上げできるよう、実用性も兼ね備えたプランをご提案

お客さまからのご感想

お客さまからのご感想
  • 「全部を一新する」という過剰な提案ではなく、今の私たちに必要な更新に絞ってくれたことが、何よりの安心感に繋がりました。担当者の調整力や、等身大の提案に好感が持てました。

  • リフォームを通じて、収納するものの定位置や一時置きスペースができたことで、リビングが散らかりにくくなりました。散らからない仕組みづくりで快適な我が家になりました。

  • 時間厳守はもちろん、連絡の速さや職人さんたちの見事な連携に驚きました。翌日にはすぐ対応してくれるフットワークの軽さが心強かったです。スピード感と誠実な対応に安心してお任せができました。

ポイントリフォーム最新リフォーム・
リノベーション事例