家事動線をラクにする間取りアイデア9選【子育て&共働き家庭向け】
※2026年1月時点の情報です

「毎日の家事を少しでも効率よく、ストレスなくこなしたい!」
そう願う共働き夫婦・子育て家庭の間で注目されているのが、「家事動線」を意識した間取りづくりです。
限られた時間の中で料理・洗濯・片付けをスムーズにこなすには、動きやすい家の設計が欠かせません。
この記事では、家事動線をラクにする間取りアイデア9選と、間取り検討時に押さえておきたいコツを紹介します。
家族が気持ちよく暮らせるリノベーションを考えている方は、ぜひ参考にしてください。
家事動線とは?快適な暮らしを生む考え方

家事動線とは、料理・洗濯・掃除など、家事を行う際に人が動くルートのことを指します。
似た言葉に「生活動線」や「来客動線」がありますが、それぞれ目的が異なります。
・家事動線:調理や洗濯など、家事を行うための動きやすさを重視
・生活動線:家族が普段どのように生活するか(帰宅・入浴・就寝など)の流れ
・来客動線:訪問客をスムーズに迎えられる経路や空間の配置
家事動線が整うと、移動距離が短くなり、家事の負担がぐっと減ります。
例えば、洗濯物を洗って干して片付けるまでの動きが一直線になっていれば、毎日の動作が自然にスムーズになります。一方で、動線が複雑だと「行ったり来たり」で時間と体力を消耗することに。
家事のしやすさは、間取り設計のちょっとした工夫で大きく変えられるのです。
家事動線をラクにする間取りアイデア9選
ここからは、「東京ガスリノベーション」が実際に手掛けた事例から、家事動線にこだわった9のアイデアを紹介します。
共働き夫婦・子育て家庭ならではの「助かるポイント」に注目し、ぜひ参考にしてみてくださいね。
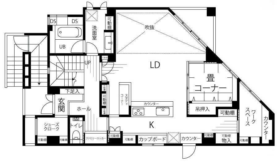
1.キッチン→洗面室→浴室が最短距離でつながる間取り
キッチン・洗面室・浴室を一直線につないだ事例です。
料理をしながら洗濯機を回したり、出勤前の身支度をしながら朝食の準備をしたり。
行き来のしやすさが、忙しい時間帯の家事をスムーズにしてくれます。
お客様から「洗面室やキッチンの位置は以前と変わらないのに、最短距離の家事動線でとっても便利!」とのお声もいただきました。
2.広々とした洗面室・家事室で「洗う・干す・しまう」を完結できる間取り
洗面室・家事室を広く取り、洗濯から収納までをまとめて行えるようにした事例です。
朝早いご主人様が、洗顔・着替えなどの身支度をこの場所で完結できるように計画しました。
物干しスペースと家事スペースも設け、室内干しやアイロンがけもゆったりと行えます。
3.キッチンと寝室をウォークスルークローゼットでつないだ間取り
キッチンと寝室の間に、通り抜けられるウォークスルークローゼットを設けた事例です。
朝は着替えを済ませてそのままキッチンへ、夜は家事を終えたあとに寝室へ直行。
動線が一本につながることで、家の中の移動がリズムよく進みます。
忙しい共働き夫婦にもぴったりの間取りです。
4.ランドリースペースと洗面スペースを分離させた間取り
洗面台を切り離し、脱衣室・ランドリースペースを独立させた間取りです。
家族が身支度をしていても、気兼ねなく洗濯や入浴ができるようになりました。
雑多に見えやすい洗剤やランドリーグッズをまとめて隠せるのもポイントです。
さらに、洗面スペースを挟んでウォークインクローゼットを設けることで、乾いた衣類をすぐ片付けられる便利な動線も実現しています。
5.通り抜けできるファミリークローゼットを設けた間取り
子ども部屋と寝室の間に、通り抜けできるファミリークローゼットを設けた事例です。
家族全員の衣類を一か所にまとめて収納できるため、洗濯後の片付けが一気に完了。
季節ものや布団などの大きな荷物もまとめてしまえるから、部屋ごとに収納を分ける必要がありません。
家族それぞれが使いやすく、自然と片付けが続く快適な間取りです。
6.玄関ホールにファミリーロッカーを設けた間取り
玄関横に、家族4人分のコート、バッグ、帽子などを収められるロッカーを設けた事例です。
お出かけ前の身支度も、帰宅後の片付けもこの場所で完結。お子様の片付け習慣が身に付きやすく、リビングが散らかりにくくなるのもうれしいポイントですね。
花粉や砂ぼこりを室内に持ち込まず、すっきり清潔な玄関まわりを保てます。
7.玄関横ウォークインクローゼットで「お出かけ動線」が整う間取り
玄関ホールに土間を新設し、1日2回の散歩が日課の愛犬のために「おさんぽ動線」を設けた事例です。
玄関からウォークインクローゼットを通り抜け、そのまま洗面所で足を洗ってリビングへ。
靴を脱いでコートをかけ、手を洗うまでの流れも自然にできるので、外出や帰宅時もスムーズです。
愛犬のお散歩時はもちろん、普段の外出や帰宅時にも使いやすく、家族みんなにとって心地よい玄関まわりになりました。
8.玄関土間と使い勝手の良いシューズクロークを設けた間取り
玄関から廊下、洋室の一部を取り込んで、奥行きのある土間スペースを新設した事例です。
自転車や宅配の荷物を一時的に置く場所として重宝し、外出・帰宅時の動線もスムーズに。
アーチ形状の入り口が印象的なシューズクロークには、靴だけでなく傘やスポーツ用品もたっぷり収納可能。
見た目も機能も両立した、使いやすく心地よい玄関スペースになりました。
9.親子共有のスタディコーナーがある間取り
リビングの一角に、家族みんなで使えるスタディコーナーを設けた事例です。
宿題をする子どもの隣で、親がパソコン作業をしたり書き物をしたり。本や書類、デスク回りの雑貨をしまえる大容量の棚も設けました。
声をかけやすい距離感で、安心して見守れる空間になっています。
育て&共働き家庭のための家事動線づくりのコツ
家事動線の基本は、「家族の動きに合わせる」こと。
家族の一日の過ごし方をイメージしながら、使う時間帯や場所の重なりを整理しましょう。
例えば朝の混雑を避けたいなら、洗面台を2つ設けたり、洗濯と身支度の動線を分けたりするのも一つの方法です。
また、夫婦で家事を分担することを前提に、「2人で立っても窮屈にならないキッチン」「干す・畳むを一緒にできるランドリースペース」など、協力しやすい間取りを意識すると効率が上がります。
さらに、収納は「使う場所の近くに設ける」のが鉄則。
片付けやすさが家事のしやすさにつながり、自然と家族も参加しやすくなります。
間取りプラン成功のポイントとよくある失敗例

間取りを検討する際は、図面上の動線だけでなく、実際の使い勝手をイメージすることが大切です。
例えば、洗濯物を持って階段を上がる・下がる動作や、買い物帰りに荷物を運ぶルートなど、リアルな動きをシミュレーションしてみましょう。
よくある失敗例としては、「収納の奥行きが深すぎて使いにくい」「子ども部屋が廊下の奥で目が届きにくい」などがあります。
また、「動線を短くしすぎる」のも注意が必要。キッチンや洗面が密集しすぎると、家族が動くたびにぶつかってしまう可能性もあります。
設計段階で、実際の暮らしを具体的にイメージしながら調整することが、快適な間取りづくりのポイントです。
まとめ
家事動線を整えれば、時間と心にゆとりが生まれます。
家族みんなが自然に動ける間取りなら、毎日の家事もぐっとラクになります。
今回ご紹介した内容を参考に、快適な住まいを実現してくださいね。
東京ガスリノベーションは、これまで数多くのご家庭の「もっと暮らしやすくしたい」という想いを形にしてきました。
長年の経験をもとに、家族構成や生活リズムに合わせた動線設計や収納計画をご提案しています。
東京ガスグループだからこそできる、確かな品質と安心のリノベーションで、家事のしやすさも、暮らしの心地よさも両立した住まいを実現しませんか。
























